Mobil home Vendée PMR – personne à mobilité réduite ou handicapé

Mobil home ROSEAU

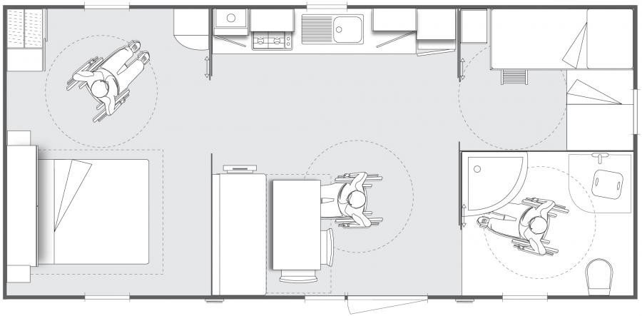
Mobil home O’hara Life PMR 2 chambres pour les personnes à mobilité réduite – Salon-repas avec grande cuisine équipée, salle d’eau avec toilette adaptée, terrasse bois semi-couverte sur un grand emplacement délimité et ombragé avec rampe d’accès. Pour passer de bonnes vacances en famille dans votre camping avec piscine sur la côte Atlantique. Venez profiter de cette location de mobil home PMR pour vos vacances.

Mobil home PMR Roseau

30 m2 – 4 personnes + bébé

Mobil home pour des personnes à mobilité réduite avec rampe d’accès.

  • Capacité 4 personnes plus un bébé
  • Rampe d’accès personne handicapé
  • 2 chambres
  • Age du mobil home : – 10 ans
  • Terrasse Bois couverte
  • Superficie + 30 m²
DISPONIBILITÉ ET RÉSERVATION

Pensez à prendre vos draps et taies d’oreiller !

Mobil home en Vendée : Détail de la location

Equipement

  • 1 cuisine avec grand réfrigérateur-congélateur, plaque de cuisson, four micro-ondes,
  • 1 coin salon avec TV, Table et chaises repas
  • 1 chambre 2 lits 80 x 190 (possibilité d’installer un lit médicalisé), rangements et TV,
  • 1 chambre avec 1 lit 80 et 1 lit 70 (enfant uniquement) superposé croisé, Volets roulants dans les chambres
  • 1 salle d’eau (lavabo, douche PMR, WC réhaussé)
  • Salon de jardin sur grande terrasse bois, bains de soleil
  • Inventaire complet pour 6 personnes, 4 oreillers